K·Waltz
K·Waltz — Seaview Villas
Vast spaces Open views
Vast Spaces · Open Views
Experience refined island living in an exclusive seaview villa collection designed for those who appreciate space, privacy, and panoramic ocean vistas. Each residence offers expansive views of the sea, inviting you to fully embrace the tranquility and natural beauty of Koh Samui — far removed from the hustle and bustle of urban life.
K· Waltz Seaview Villa
Each villa has a vast sea view for its dwellers You can fully enjoy the wideness of the sea and the island life away from the hustle-and-bustle city with only a free time of relaxation






K·Waltz Seaview Villas
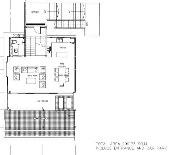
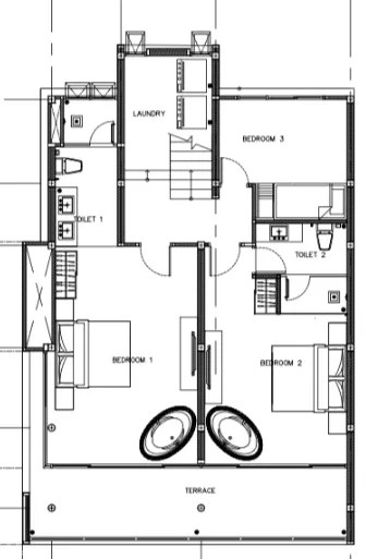
2 Living Rooms | 3 Bedrooms | 3 Bathrooms
Total Area: 299.73 sqm · Plot Area: 244.95 sqm
Set within a prestigious development spanning over 20,000 square meters, K·Waltz enjoys a prime location adjacent to downtown Chaweng Noi, offering breathtaking ocean views. The villas provide seamless access to shopping centers, fine dining, entertainment venues, international schools, and leading hospitals — perfectly balancing luxury, comfort, and everyday convenience.
Vast Spaces · Open Views
Every villa is thoughtfully designed to maximize space and natural light, creating an open, airy ambiance that frames uninterrupted sea views. Here, serene island living meets sophisticated design, delivering a truly elevated residential experience.




A 15-Minute Lifestyle Circle
Just 15 minutes from Samui International Airport, Chaweng Noi Beach, Fisherman’s Village Night Market, and Central Festival Samui — offering seamless access to lifestyle and essential amenities.
VILLA INFORMATION
VILLA PLAN